elderly housing with service Sun care home
サービス付き高齢者向け住宅 サンケアホーム神戸三宮
施設のご案内
居室の仕様
Type A(18平米)
介護の必要な方向けの、食事・入浴 は共有設備をご利用いただくお部屋 です。入浴はデイサービスをご利用いただくことが多い方におすすめです。
Type B(25平米)介護度が低く、基本的な生活はお1人でできる方向けのお部屋です。ワンルームマンションタイプで、バス・トイレ・ミニキッチン等の設備が備わっています。

1階

3階

5階

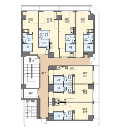
6階
施設概要

名称 | サンケアホーム神戸三宮 |
---|---|
居室概要 | Type A:19室(トイレ、洗面所、クローゼット)、 Type B:13室(トイレ、洗面所、 クローゼット、浴室、ミニキッチン) |
居室面積 | 18.14平米~25.37平米 |
所在地 | 神戸市中央区琴ノ緒町3丁目2-24 |
交通 | JR神戸線三ノ宮駅徒歩4分 |
総戸数 | 32戸 |
定員 | 32名 |
構造 | RC造7階達 |
共有設備 | 浴室×1(2階)、台所兼居間×4(2~5階)、多目的ルーム×1(7階) |
入居開始日 | 2014年5月 |
サンケアホーム神戸三宮
〒651-0094 神戸市中央区琴ノ緒町3-2-24
JR・阪急・阪神・ポートライナー・地下鉄各線「三宮駅」東口下車 徒歩5分
TEL:078-242-8000 FAX:078-242-8220
〒651-0094 神戸市中央区琴ノ緒町3-2-24
JR・阪急・阪神・ポートライナー・地下鉄各線「三宮駅」東口下車 徒歩5分
TEL:078-242-8000 FAX:078-242-8220